1-комнатная квартира, Большой Строченовский переулок, д.9
Описание
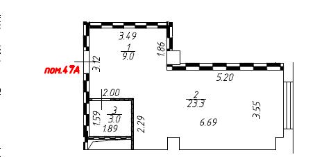
Продаются 1 комн. апартаменты-студия свободной планировки, площадью 27,4 м2 в 7 мин. пешком от м. Павелецкая, район Замоскворечье. Возможен вариант покупки с использованием ипотечных средств.
Жилая площадь 27,4 кв.м, ремонта нет. Раздельных санузлов - нет, совмещенных санузлов - 1, балконов - нет, лоджий - нет, окна выходят на улицу.
Квартира располагается на 3 этаже 14-этажного монолитного дома в ЖК Резиденции Замоскворечье 2022 года постройки. Застройщик - ООО "Трастком Девелопмент", высота потолков 3.0 м.
Дом оборудован 3 пассажирскими и 3 грузовыми лифтами, закрытая территория.
Подземная парковка на 180 машиномест, парковка с охраной. Обеспечение безопасности: видеонаблюдение, круглосуточная охрана, консьерж, противопожарная система, пропускная система. Инфраструктура: школа, детский сад, поликлиника, детские площадки, спортивные площадки, места для отдыха, супермаркет, рестораны, фитнес-центр, пункты бытового обслуживания, коммерческие объекты, офисы.
• свободная планировка: да
• наличие телевизора: нет
• наличие стиральной машины: нет
• наличие холодильника: нет
• тип дома: монолит
• год постройки: 2022 г.
• наличие парковки: да
- Тип дома:
- Монолитный
- Комнат всего:
- 1
- Этаж:
- 3
- Этажность дома:
- 14
- Общая площадь (м²):
- 27,4
- Жилая площадь (м²):
- 20
- Высота потолков 3 метра
- Окна выходят во двор
- Без ремонта
- Санузел совмещенный
- Лифт и пассажирский и грузовой











Выделить это объявление
Присвоить объявлению статус VIP